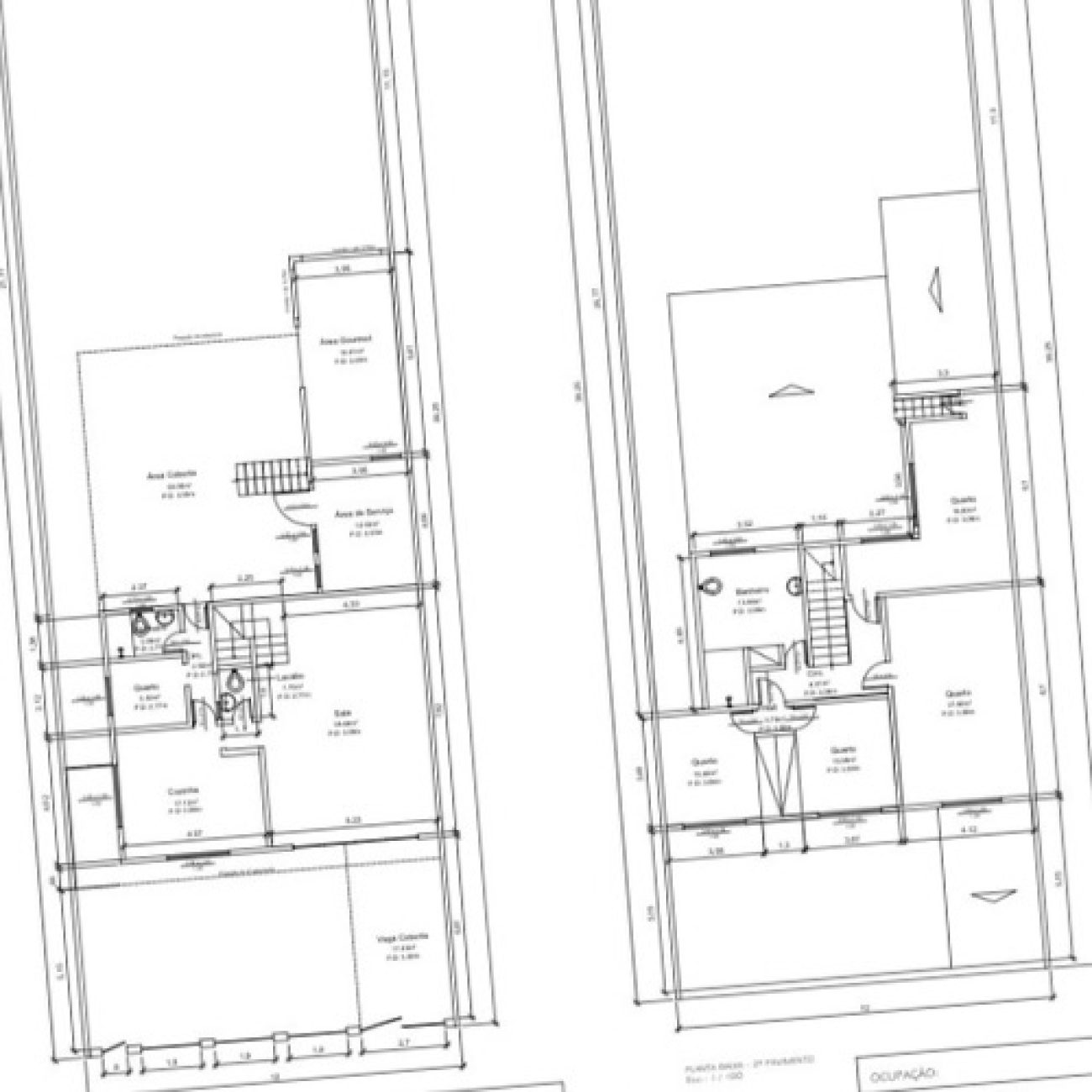
O projeto de arquitetura para usucapião é o documento técnico essencial. Nossa equipe elabora a planta do imóvel e o memorial descritivo com base em levantamento técnico preciso.
O projeto de arquitetura para usucapião é o documento técnico essencial. Nossa equipe elabora a planta do imóvel e o memorial descritivo com base em levantamento técnico preciso.